Moseley Road, Fallowfield, Manchester

  • Ref - 11619


  • 7
  • 2
  • 1
For Sale - Offers In Region Of, £555,000

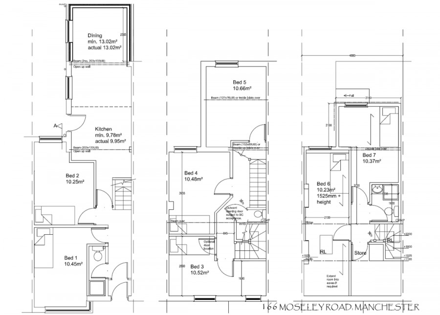
A spacious MID TERRACED HMO house with SEVEN DOUBLE bedrooms set over THREE FLOORS, RECENTLY RENOVATED TO A HIGH STANDARD this property is fully let until June 2025. Located opposite the Armitage Centre and within walking distance to WILMSLOW ROAD and public transport to the Uni's, City Centre and Hospitals.

ENTRANCE HALL

BEDROOM ONE 11' 5" x 13' 1" (3.5m x 4m)

SHOWER ROOM

BEDROOM TWO 9' 6" x 13' 1" (2.9m x 4m)

KITCHEN/DINER 31' 5" x 9' 6" (9.6m x 2.9m)

FIRST FLOOR

BEDROOM THREE 9' 6" x 15' 1" (2.9m x 4.6m)

WC

BEDROOM FOUR 9' 6" x 13' 5" (2.9m x 4.1m)

BEDROOM FIVE 11' 1" x 9' 10" (3.4m x 3m)

SECOND FLOOR

BEDROOM SIX 17' 0" x 6' 10" (5.2m x 2.1m)

BEDROOM SEVEN 12' 5" x 9' 2" (3.8m x 2.8m)

SHOWER ROOM

Add to Shortlist Remove from Shortlist

Key Features

  • INVESTMENT OPPORTUNITY
  • Open plan living/kitchen/dining area
  • Set over three floors
  • Fantastic location
  • Planning permission
  • Walking Distance to Wilmslow Road
  • Opposite Armitage Centre

CONNECT WITH US

  • MCR Move on Facebook
  • MCR Move on twitter
  • MCR Move on Instagram