Lausanne Road, Withington, Manchester

  • Ref - 10121


  • 6
  • 2
  • 1
To Let - £160 PPPW - £4,160 PCM

🏡 6-Bedroom Student House - Manchester Student Hub

Located in the heart of the Manchester Student Hub, this spacious mid-terrace house is offered fully furnished for the academic year. Ideally situated just off Wilmslow Road, the property is within walking distance of public transport links, local shops, and supermarkets, providing convenience and accessibility for students.

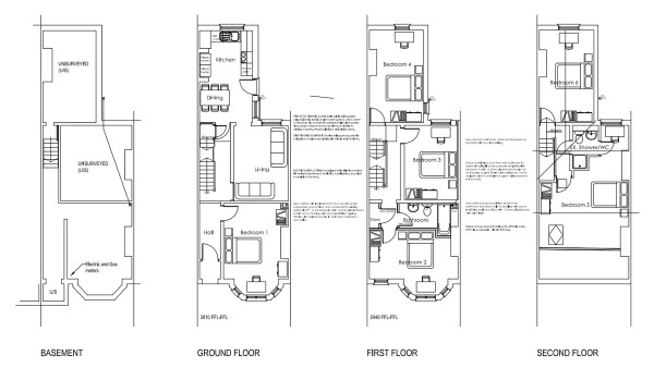
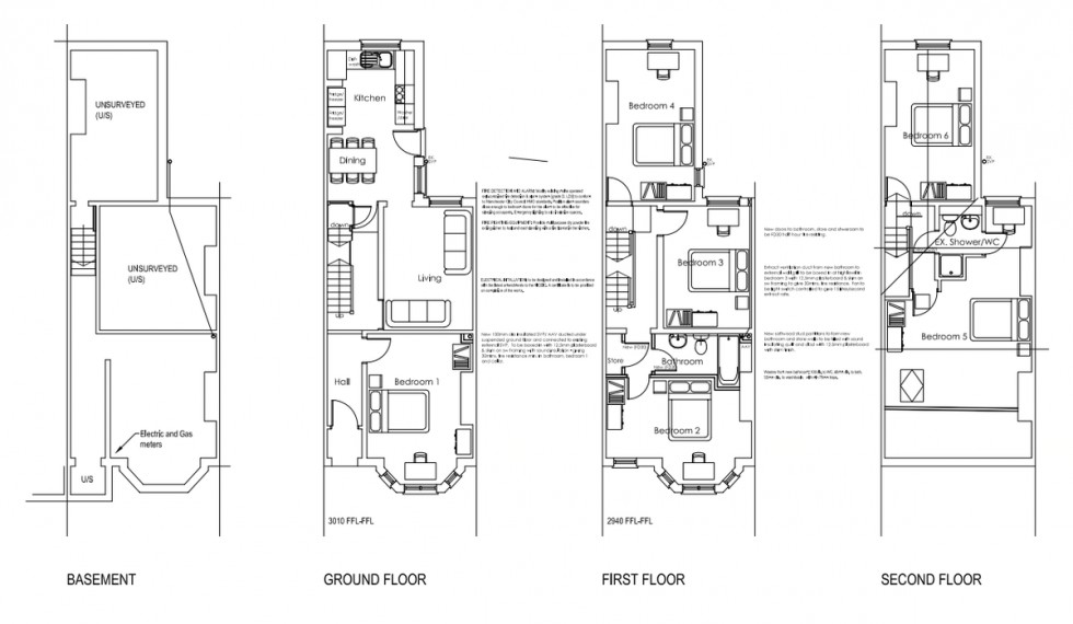
Ground Floor

Spacious separate lounge including a TV - perfect for relaxing or socialising

Modern fitted kitchen with dining area

First double bedroom

First Floor

Three additional double bedrooms, each furnished with essential student furniture

Three-piece shower suite

Second Floor

Two further double bedrooms

Second three-piece shower suite

Key Features

uPVC double glazing

Burglar alarm system

On-road parking available

All bills inclusive package available - covering Gas, Water, Electric, Broadband, and TV Licence (ask staff for details)

FREE end-of-tenancy cleaning service provided to all tenants by MCR MOVE

£400.00 deposit per person!

Add to Shortlist Remove from Shortlist

Key Features

  • Available 01/07/2026
  • Bills Inclusive Package Available
  • Deposit from £400pp
  • Free End Of Tenancy Clean Included
  • Six Double Bedrooms
  • Two Shower Suites
  • Separate Kitchen and Lounge
  • Half-Rent July
  • Popular with Students
  • Located off Wilmslow Road

CONNECT WITH US

  • MCR Move on Facebook
  • MCR Move on twitter
  • MCR Move on Instagram